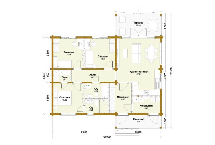
Дом из клееного бруса «Давыдово»

Только в ноябре — сезон привилегий и лучших цен на строительство домов! Черная пятница и мировая распродажа — отличный повод построить дом своей мечты со скидкой.

Большой дом с террасой, 3 спальни, зонированная гостиная с кухней
БЕСТСЕЛЛЕРЫ 2025


    Нажимая кнопку "Отправить" вы подтверждаете свое согласие на обработку персональных данных в соответствии с политикой конфиденциальности

     

    В стоимость дома помимо стенового комплекта и монтажа добавили все необходимые опции, которые редко включают другие компании, для комфортного проведения строительства и улучшения надежности будущего дома.

    Позвонить менеджеру