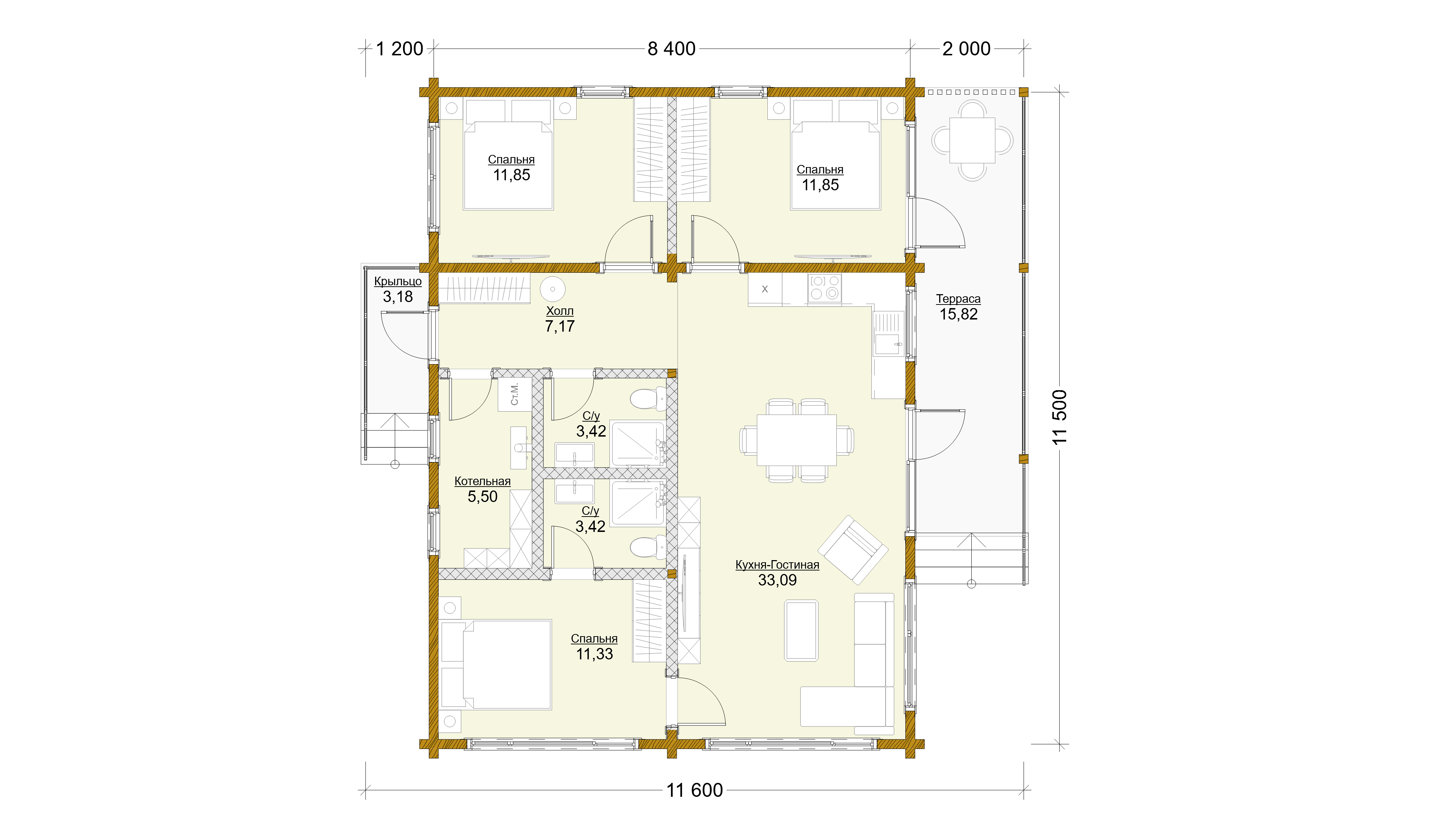
Деревянный дом из клееного бруса шириной 160 мм.
Вы можете заказать полностью индивидуальный проект с уникальным дизайном и планировкой
Возможно строительство дома в ипотеку и в кредит.
Наши партнеры — Почта банк,СБЕР, ДОМ.РФ Банк
Другие варианты комплектации
Мы можем построить дом по данному проекту:
- из бревна ручной рубки (d до 60 см.)
- оцилиндрованного бревна ( d до 30 см.)
- клееного бруса (высота до 27см, ширина до 24см, длина до 12м).
- профилированного бруса камерной сушки 195*145 и 195*195 мм.
Породы дерева: сосна, ель (возможны лиственница, кедр).
Тип фундамента: свайно-винтовой, ленточный, жб забивные сваи.
При заказе строительства деревянного дома или бани в нашей компании готовый проект или разработка нового авторского проекта нашими штатными архитекторами — бесплатно!
Более 3000 клиентов уже выбрали ЭКО-ТЕХ
ОТЗЫВЫ НАШИХ ЗАКАЗЧИКОВ
Представляем мнения и оценки людей, которые уже доверили нам строительство своих деревянных домов.
Мы ценим ваше мнение о нашей работе и считаем его важным для оценки нашего профессионализма и помощи другим людям в выборе компании для строительства дома.
Ваши отзывы помогают нам расти и развиваться, а также строить надежные и красивые деревянные дома для наших клиентов


















