Дом из клееного бруса «Раменский»

Только в октябре — подарки и специальные предложения в честь презентации выставочного дома. Звоните и получите уникальное предложение, доступное ограниченное время.

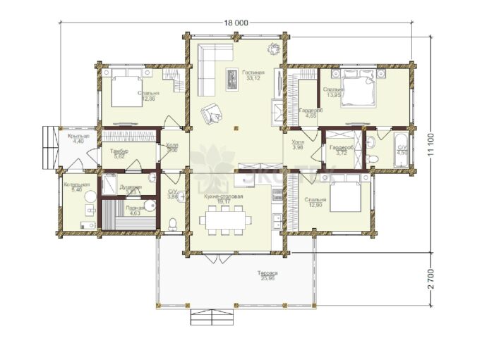
Одноэтажный дом с сауной с 3 спальнями и террасой


    Нажимая кнопку "Отправить" вы подтверждаете свое согласие на обработку персональных данных в соответствии с политикой конфиденциальности

     

    В стоимость дома помимо стенового комплекта и монтажа добавили все необходимые опции, которые редко включают другие компании, для комфортного проведения строительства и улучшения надежности будущего дома.

    Позвонить менеджеру