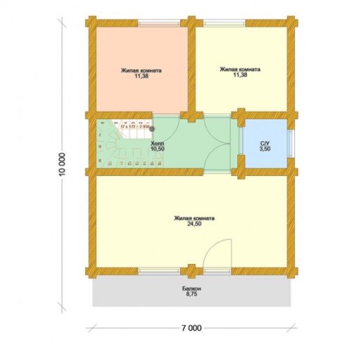
Проект дома «Заречье»

Только в ноябре — сезон привилегий и лучших цен на строительство домов! Черная пятница и мировая распродажа — отличный повод построить дом своей мечты со скидкой.

Двухэтажный дом с террасой и мансардой, материал оцилиндрованное бревно


    Нажимая кнопку "Отправить" вы подтверждаете свое согласие на обработку персональных данных в соответствии с политикой конфиденциальности

     

    В стоимость дома помимо стенового комплекта и монтажа добавили все необходимые опции, которые редко включают другие компании, для комфортного проведения строительства и улучшения надежности будущего дома.

    Позвонить менеджеру