Архангельский лес
Только северный лес камерной сушки. Прочность и долговечность на десятилетия.
Мы используем cookie для улучшения работы сайта.

Готовый проект
Готовый дом 93 м2
под ключ за 2 месяца
С Инженерией, отделкой, коммуникациями и гарантией. Заезжай и живи
2 спальни
Терраса 18,3 м2
Комуникации включены
Стоимость дома
9 295 000 ₽
под ключ
Включена отделка
Коммуникации в подарок
Ипотека от 5%
Цена зафиксируется за вами на 30 дней
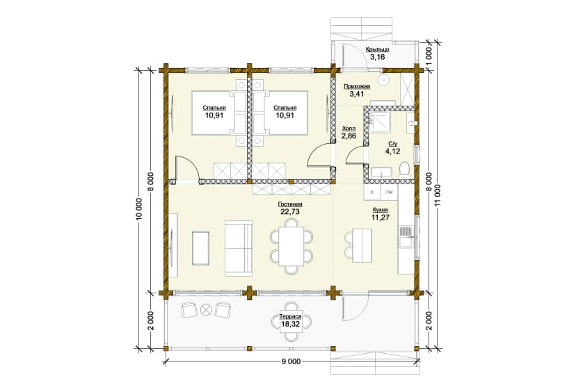
93 м2 - для комфортной жизни всей семьи
Продуманная планировка, посторная кухня-гостинная, 2 спальни и большая терраса. Всё, что нужно для жизни за городом - уже в этом проекте.
Площадь дома
93 м2
Терраса
18.3 м2
Спальни
2
Санузлы
1
Срок строительства
2 месяца

Мы используем качественные материалы и современные технологии строительства. Никаких доплат и неожиданностей.

Железобетонные сваи
Забивка ж/б свай сечением 150×150 мм, L (длина) — 3 000 мм. Проверка красных линий на участке. Привязка реперной точки нулевой отметки с заказчиком. Привязка осей совместно с заказчиком, составление акта привязки.

Стеновой комплект
Внутренняя отделка Имитация бруса 20*140 мм. Внешняя отделка Имитация бруса 20*140 мм. Проклейка пленок скотчем. Пароизоляция. Ветровлагозащитная супердиффузионная мембрана. Дополнительный слой утепления 50 мм (плитный утеплитель). Утепление плитное 150мм (плитный утеплитель). Каркас внешних стен доска сухая строганая 45х140 мм камерной сушки.

Капитальная кровля
Классическая двускатная крыша, покрытая современными кровельными материалами, надёжно защищает дом в любое время года. Усиленная стропильная система повышает безопасность и надежность крыши дома.

Материалы отделки
Шлифовка и покраска, Подшив свесов, утепление и отделка цокольной части фундамента, устройство потолка: отделка вагонкой, пол – ламинат или плитка, каркасные стены: отделка имитацией бруса.

Система электроснабжения
Система электроснабжения включает в себя щит распределительный, разводка проводов, контур заземления. Система электроснабжения скрытая, из расчёта 24 точек (розеток и выключателей). Щит и автоматы, провода применяются российского производства, соответствующие ГОСТ.

Система водоснабжения
Система водоснабжения включает в себя выводы под умывальник, унитаз, душевую кабину, кухонная раковина, стиральная машина, посудомоечная машина. Водонагреватель на 80 литров. Вводной узел для воды, который включает в себя само промывной фильтр и фильтр колбу. Разводка системы водоснабжения выполнена полипропиленовыми, армированными трубами имеющими качественные соединения срок службы которых более 50 лет. Система канализации включает в себя выводы под умывальник, унитаз, душевую кабину, кухонную раковину, стиральную машину, посудомоечную машину. Канализация разводится под домом в утеплители.
Вы получаете полностью готовый дом с подключенными инженерными системами. Никаких дополнительных хлопот.
Электрика
Разводка по дому, розетки, выключатели, освещение.
Водоснабжение
Скважина, насос, разводка воды по дому.
Канализация
Станция биологической очистки, разводка по дому.
Не нужно ничего докупать и подключать - мы всё сделали за вас.
Мы строим дома, в которых хочется жить
Только северный лес камерной сушки. Прочность и долговечность на десятилетия.
Контроль качества на каждом этапе. Никаких переплат и скрытых наценок.
Строим без посредников. Опытные мастера, с которыми мы работаем годами.
5 лет на дом и 2 года на инженерные системы.
Запланируйте встречу с персональным менеджером на центральной выставочной площадке. На экскурсии вы сможете вживую увидеть построенные дома, задать все интересующие вопросы, подобрать проекты под себя, узнать варианты по стоимости.
Запланируйте встречу с персональным менеджером на центральной выставочной площадке. На экскурсии вы сможете вживую увидеть построенные дома, задать все интересующие вопросы, подобрать проекты под себя, узнать варианты по стоимости.
Узнайте, сколько будет стоить ваш дом
Оставьте заявку и получите:

Мураховский
Денис
Главный архитектор