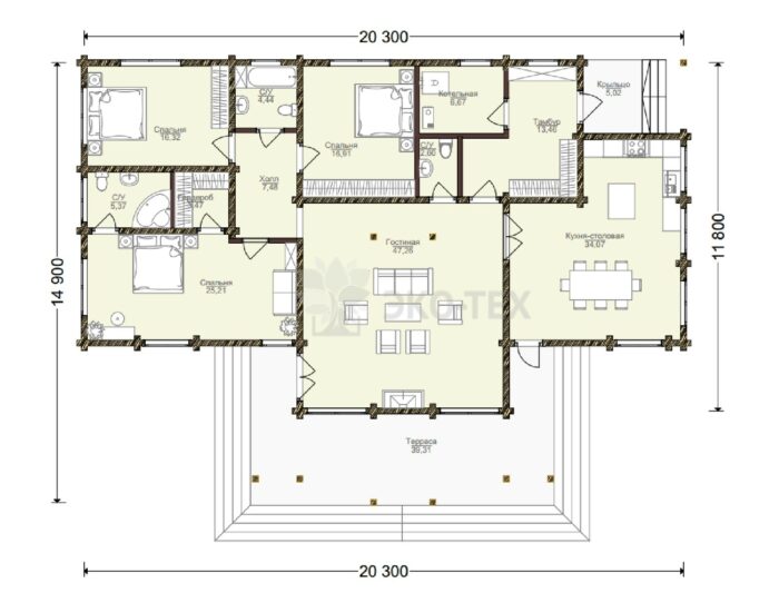
Проект дома «Голицыно»

Только в сентябре — подарки и специальные предложения в честь презентации выставочного дома. Звоните и получите уникальное предложение, доступное ограниченное время.

Одноэтажный дом с большой террасой и гостиной, материал клееный брус


    Нажимая кнопку "Отправить" вы подтверждаете свое согласие на обработку персональных данных в соответствии с политикой конфиденциальности

     

    В стоимость дома помимо стенового комплекта и монтажа добавили все необходимые опции, которые редко включают другие компании, для комфортного проведения строительства и улучшения надежности будущего дома.

    Позвонить менеджеру